Popular
Total views: 2500+
Guide price
£535,000Plot for sale
Little Marston Road, Marston Magna, Yeovil, Somerset, BA22
Plot
2396
EPC rating: G
Key information
Features and description
- A unique development plot
- Edge of village location
- 2.8 acres ( approx. ) in all
- Class Q planning permission
- Countryside views
- Good communication links
A wonderful opportunity to purchase a residential building plot of 2.8 acres, adjoining open countryside.
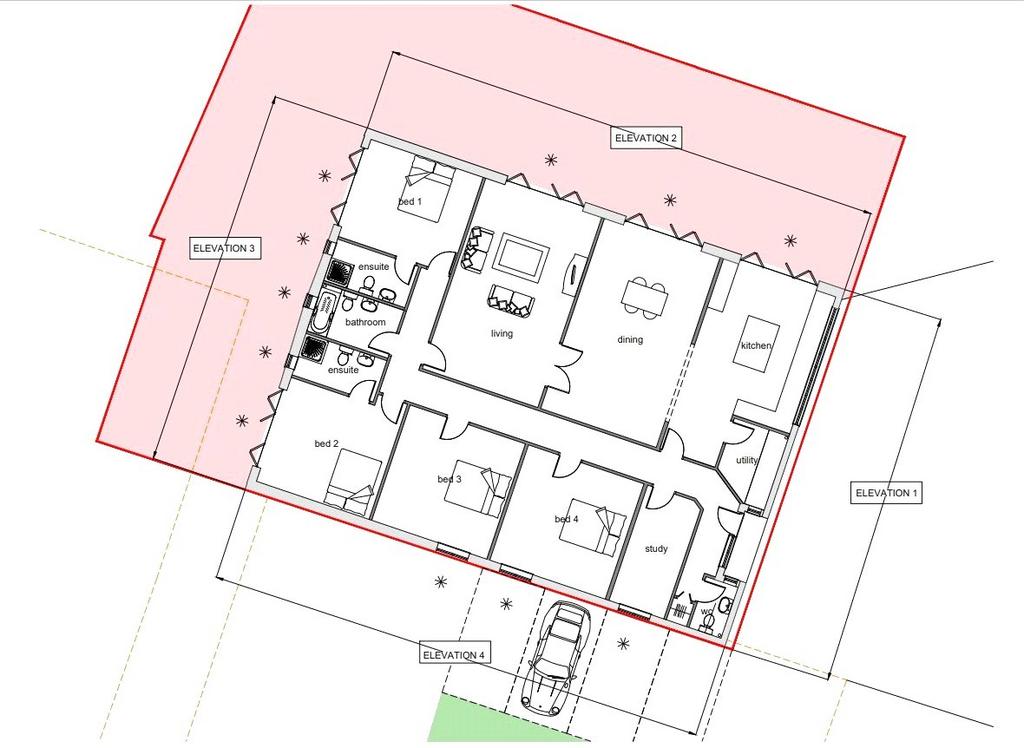
West End Farm is situated on the very west edge of the village and enjoys beautiful Somerset countryside views. Class Q planning permission has been granted for the conversion of a barn into an individual, four bedroom, single story dwelling.
ACCESS
The site is set back from Little Marston Road and is accessed over a long private drive.
PLANNING
Full planning details can be found on the Somerset planning portal under reference number 23/00728/PAMB Prior approval is approved for the change of use of an existing agricultural barn into a dwelling house as per the Town and Country Planning (General Permitted Development) Order 2015 (as amended) under Schedule 2, Part 3, Class Q
NOTE
A new full application has been submitted for a change to the design of the property and this is reflected in the CGI images in this brochure.
SITUATION
Marston Magna lies on the South Somerset/Dorset border and is well placed for easy access to major road networks making it a highly sought after location. The village enjoys a range of amenities including village hall with events throughout the year, play park, church and public house and numerous public footpaths for dog walking.
The nearby village of Queen Camel offers a primary school, GP surgery, village shop with Post Office and a public house. The historic town of Sherborne, with its abbey, world renowned schools, and variety of shops, is within 5 miles as is the town of Yeovil that offers a wider range of shopping, recreational, and educational facilities, including a college and district hospital. Mainline railway stations are located in Sherborne, Yeovil, and Castle Cary and provide quick services to London.
SERVICES
Mains water and electricity are located close by and are to be connected by the Buyer as is drainage. A quote for electricity available upon request. Ultrafast broadband is available in the area and all mobile phone networks have good coverage.
Rights of way, Easements and Wayleaves
The land is sold subject to and with the benefit of all existing rights of way whether public or private, including wayleaves, easements, covenants, restrictions and obligations whether referred to specifically in these sale particulars or not. The purchaser shall be deemed to have full knowledge of the boundaries and the ownership thereof. The mines and mineral below a depth of 100 feet from the surface together with ancillary powers of working are excepted. There is a footpath running alongside the east boundary and up the drive.
DIRECTIONS
Post code: BA22 8BN
What3words /// gone.taxpayers.reporting
West End Farm is situated on the very west edge of the village and enjoys beautiful Somerset countryside views. Class Q planning permission has been granted for the conversion of a barn into an individual, four bedroom, single story dwelling.
ACCESS
The site is set back from Little Marston Road and is accessed over a long private drive.
PLANNING
Full planning details can be found on the Somerset planning portal under reference number 23/00728/PAMB Prior approval is approved for the change of use of an existing agricultural barn into a dwelling house as per the Town and Country Planning (General Permitted Development) Order 2015 (as amended) under Schedule 2, Part 3, Class Q
NOTE
A new full application has been submitted for a change to the design of the property and this is reflected in the CGI images in this brochure.
SITUATION
Marston Magna lies on the South Somerset/Dorset border and is well placed for easy access to major road networks making it a highly sought after location. The village enjoys a range of amenities including village hall with events throughout the year, play park, church and public house and numerous public footpaths for dog walking.
The nearby village of Queen Camel offers a primary school, GP surgery, village shop with Post Office and a public house. The historic town of Sherborne, with its abbey, world renowned schools, and variety of shops, is within 5 miles as is the town of Yeovil that offers a wider range of shopping, recreational, and educational facilities, including a college and district hospital. Mainline railway stations are located in Sherborne, Yeovil, and Castle Cary and provide quick services to London.
SERVICES
Mains water and electricity are located close by and are to be connected by the Buyer as is drainage. A quote for electricity available upon request. Ultrafast broadband is available in the area and all mobile phone networks have good coverage.
Rights of way, Easements and Wayleaves
The land is sold subject to and with the benefit of all existing rights of way whether public or private, including wayleaves, easements, covenants, restrictions and obligations whether referred to specifically in these sale particulars or not. The purchaser shall be deemed to have full knowledge of the boundaries and the ownership thereof. The mines and mineral below a depth of 100 feet from the surface together with ancillary powers of working are excepted. There is a footpath running alongside the east boundary and up the drive.
DIRECTIONS
Post code: BA22 8BN
What3words /// gone.taxpayers.reporting
Property information from this agent
About this agent

Woolley & Wallis is a leading regional firm of estate agents, chartered surveyors and auctioneers in Wiltshire, Hampshire and Dorset. Founded in 1884, Woolley & Wallis offers an extensive range of professional services covering all areas of residential, rural and commercial property. The firm is well represented with their network of estate agents offices in Fordingbridge, Lymington, Marlborough, Ringwood, Romsey, Salisbury and Shaftesbury. We pride ourselves in offering a truly professional and individual service from the moment that you make contact with us. If you need property advice, are thinking of buying, selling or letting, you can be sure that we will make the process as straightforward as possible for you.
Similar properties
Discover similar properties nearby in a single step.






