4 bedroom property with land for sale
Key information
Features and description
- Individual building plot for sale
- Planning consent for an impressive 4 bedroom family home
- Generous plot with west facing garden
- Popular village location
The Norfolk Agents are pleased to offer the rare opportunity to purchase an individual building plot, with planning consent to construct a brand new 4-bedroom family home in the ever-popular village of Docking. The site is ideally located for exploring the beautiful North Norfolk coastline, with miles of footpaths and bridleways from the doorstep, along with a broad range of beaches and other attractions within a 5-mile drive. The village pub is only a stone's throw from the site, whilst the village shop and school are both less than a 10-minute walk away.
For more information relating to the planning consent, please visit the King's Lynn & West Norfolk Council planning website and use the reference: 24/02001/F.
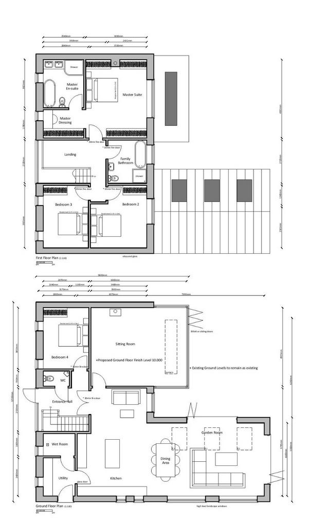
The new house currently falls within the grounds of an existing dwelling, with the new property positioned to the south of the existing. The site layout provides private parking and a garage or cart-shed for the new property, with both houses sharing access from Station Road. The new property will also have a private turning area to the front and a pleasant westerly facing garden at the rear, which backs onto open fields.
To remain in keeping with its immediate surroundings, the proposed dwelling is of a traditional barn-style appearance, with large expanses of glazing, brick and flint elevations under a clay pantile roof, and a more contemporary single storey section at the rear. The internal layout is arranged around a bright and spacious entrance hall with stairs rising up to a galleried landing on the first floor. The ground floor accommodation includes a superb open-plan kitchen/living/dining area with two sets of bi-folding doors to the garden, a separate sitting room (also with bi-folding doors), a ground floor double bedroom, a wet room, separate WC and a utility room. Upstairs there will be three further double rooms, along with a family bathroom, with the master bedroom enjoying the luxury and convenience of an en-suite bathroom and dressing room.
LOCATION
Docking is a popular village with a village shop and post office, primary school, doctors surgery, fish & chip shop and The Railway public house. There is a tennis court, bowling green and a children's play area on the village playing field. The village is perfectly placed for the nearby North Norfolk coast with Brancaster Beach being only a 5-mile drive away.
SERVICES
We understand that mains services are available on site.
AGENTS NOTE
The project is subject to a Community Infrastructure Levy (CIL) payment. For more information, please contact the agent.
TENURE: Freehold
COUNCIL TAX BAND: N/A
EPC RATING: N/A - The full certificate can be downloaded or provided by the Norfolk Agents.
1. Purchasers will be asked to produce ID to satisfy money laundering regulations and we would ask for your co-operation in providing the relevant documentation.
2. While we endeavour to make our sales details fair, accurate and reliable, they are only a general guide to the property. If there is any point which is of particular importance to you, please contact the office and we will be pleased to make further investigations.
3. The measurements indicated are supplied for guidance only.
4. Please note we have not tested the services or any of the equipment or appliances in this property. We strongly advise prospective buyers to commission their own survey or service reports before finalising their offer to purchase.
5. THESE PARTICULARS ARE ISSUED IN GOOD FAITH BUT DO NOT FORM PART OF ANY OFFER OR CONTRACT. THE MATTERS REFERRED TO IN THESE PARTICULARS SHOULD BE INDEPENDENTLY VERIFIED BY PROSPECTIVE BUYERS OR TENANTS. THE NORFOLK AGENTS LIMITED NOR ANY OF ITS EMPLOYEES HAS ANY AUTHORITY TO MAKE OR GIVE ANY REPRESENTATION OR WARRANTY WHATSOEVER IN RELATION TO THIS PROPERTY.
Area statistics
About this agent







Floorplan
Area stats