Popular
Total views: 2500+
Offers over
£390,000Mixed use for sale
The Watermill, High Street, Edenbridge
Chain-free
Study
Mixed use
Key information
Tenure: Freehold
Council tax: Ask agent
Features and description
Granted Planning Permission to change the Use From Class E Office to Residential. A once in a lifetime opportunity to become the proud owner of one of the most beautiful properties in Edenbridge, set within the Eden Valley. Situated on the high street of Edenbridge, surrounded by countryside and a short distance from mainline railway stations and amenities as well as a number of good schools is a Grade II Listed Watermill with views of the millpond and enjoying east facing sunrises, making this a spectacular property. The property is currently used as an office and has just received full planning permission to change the use to residential. The planning is to convert the entire watermill into a beautiful three-bedroom family home with views over its very own private mill pond. The property is vacant with no onward chain.
*Granted planning permission to convert into a 3 bedroom family home
*Grade II listed 18th century mill
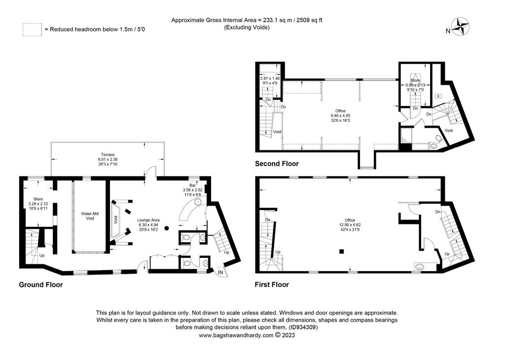
*2,509 square feet
*Three storey mill
*Abundance of character
*Mill wheel
*Millpond terrace
*Short distance from mainline railway stations
*45 minutes to London from Edenbridge train station
*Junction 6 m25 - 20 minutes
*Junction 5 m25 - 30 minutes
*Adjacent to the river Eden
*Beautiful setting
*No onward chain
Currently the property is laid out as follows:
Front door opening to ground floor: approximately 415 square feet
Large open room with two sets of stairs to the first floor. Access to the terrace overlooking the millpond, most of which is part of the property. The large timber mill wheel sits at centre stage. Two WC's and a store are also located on the ground floor, where there is currently a bar area.
First floor: approximately 781 square feet
Large open plan room, currently used as a commercial office space, again accessed via 2 staircases and a kitchenette area.
The second floor comprises one large room with vaulted ceilings currently used as office space and three separate storerooms. The second floor has the benefit of a WC & shower room and once again accessed via two separate staircases.
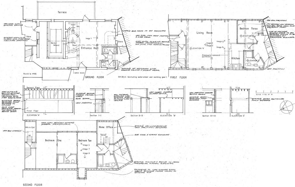
Granted planning permission to convert the property to a single three bedroom dwelling, set over 3 floors, with a home office and terrace, overlooking its own mill pond.
The property has a wealth of character, tall ceilings and plenty of natural light.
It is understood that the property could be converted differently with a range of ideas. The fact the planning has been granted for the change of use and the alternative interior layouts can be discussed with the architect.
Previous planning consents:
The watermill was once a restaurant, and it is felt that this use class would be easily obtained along with a liquor licence to create a bar or restaurant.
Outside
An east facing terrace with views over the millpond.
History
High Street No 87 (The Old Mill) TQ 4446 12/415 10.9.54. II. No 87: 18th century water mill with undershot wheel and originally a stream running under road (now diverted). Rounded tiled gambrel roof half-hipped at right. Weatherboarded with various casement windows and loading bay projecting on upper floor. A building of hidden treasures, a mill was first documented in 1199, thereafter enduring a romanticised and poignant journey through history, witnessing estate and land changes. The current building was built in the mid 18th century and used as a working flour mill up until 1919 before transforming into a grinding mill until 1944. The retained grinding stones within the property are a testament to the Mills presence. It was lovingly restored in 1986 retaining all the mill machinery and offers the potential buyer a stunning home and a three bedroom cottage.
Services: Mains water, electricity, drainage and gas.
Local Authority: Sevenoaks District Council
Current Rateable Value: £13,000
Tenure: Freehold
Planning Permission:
Edenbridge is a small market town with an attractive medieval high street surrounded by countryside with a selection of shops, including Waitrose, pubs, restaurants, its own museum and hospital with MIU. There are a variety of schools in the surrounding area. Local recreational amenities include a leisure centre with swimming pool, golf courses and a number of local National Trust properties.
Edenbridge benefits from two mainline train stations offering services to London in 45 minutes. The M25 can be easily accessed at either junction 6 (Godstone) or junction 5 (Sevenoaks). Gatwick airport is about 18 miles and the Channel Tunnel about 65 miles allowing easy access to the Continent.
Miles to: M25 Godstone (J6) 10, Oxted 8, Sevenoaks 12, Tunbridge Wells 13, East Grinstead 10.
Tenure: Freehold
*Granted planning permission to convert into a 3 bedroom family home
*Grade II listed 18th century mill
*2,509 square feet
*Three storey mill
*Abundance of character
*Mill wheel
*Millpond terrace
*Short distance from mainline railway stations
*45 minutes to London from Edenbridge train station
*Junction 6 m25 - 20 minutes
*Junction 5 m25 - 30 minutes
*Adjacent to the river Eden
*Beautiful setting
*No onward chain
Currently the property is laid out as follows:
Front door opening to ground floor: approximately 415 square feet
Large open room with two sets of stairs to the first floor. Access to the terrace overlooking the millpond, most of which is part of the property. The large timber mill wheel sits at centre stage. Two WC's and a store are also located on the ground floor, where there is currently a bar area.
First floor: approximately 781 square feet
Large open plan room, currently used as a commercial office space, again accessed via 2 staircases and a kitchenette area.
The second floor comprises one large room with vaulted ceilings currently used as office space and three separate storerooms. The second floor has the benefit of a WC & shower room and once again accessed via two separate staircases.
Granted planning permission to convert the property to a single three bedroom dwelling, set over 3 floors, with a home office and terrace, overlooking its own mill pond.
The property has a wealth of character, tall ceilings and plenty of natural light.
It is understood that the property could be converted differently with a range of ideas. The fact the planning has been granted for the change of use and the alternative interior layouts can be discussed with the architect.
Previous planning consents:
The watermill was once a restaurant, and it is felt that this use class would be easily obtained along with a liquor licence to create a bar or restaurant.
Outside
An east facing terrace with views over the millpond.
History
High Street No 87 (The Old Mill) TQ 4446 12/415 10.9.54. II. No 87: 18th century water mill with undershot wheel and originally a stream running under road (now diverted). Rounded tiled gambrel roof half-hipped at right. Weatherboarded with various casement windows and loading bay projecting on upper floor. A building of hidden treasures, a mill was first documented in 1199, thereafter enduring a romanticised and poignant journey through history, witnessing estate and land changes. The current building was built in the mid 18th century and used as a working flour mill up until 1919 before transforming into a grinding mill until 1944. The retained grinding stones within the property are a testament to the Mills presence. It was lovingly restored in 1986 retaining all the mill machinery and offers the potential buyer a stunning home and a three bedroom cottage.
Services: Mains water, electricity, drainage and gas.
Local Authority: Sevenoaks District Council
Current Rateable Value: £13,000
Tenure: Freehold
Planning Permission:
Edenbridge is a small market town with an attractive medieval high street surrounded by countryside with a selection of shops, including Waitrose, pubs, restaurants, its own museum and hospital with MIU. There are a variety of schools in the surrounding area. Local recreational amenities include a leisure centre with swimming pool, golf courses and a number of local National Trust properties.
Edenbridge benefits from two mainline train stations offering services to London in 45 minutes. The M25 can be easily accessed at either junction 6 (Godstone) or junction 5 (Sevenoaks). Gatwick airport is about 18 miles and the Channel Tunnel about 65 miles allowing easy access to the Continent.
Miles to: M25 Godstone (J6) 10, Oxted 8, Sevenoaks 12, Tunbridge Wells 13, East Grinstead 10.
Tenure: Freehold
Property information from this agent
About this agent

We offer a comprehensive property service and we have in excess of 140 years’ experience between our property professionals in Residential Sales & Lettings. Each of the offices have experienced staff who are on hand to offer expert advice. Having grown steadily over the last ten years, we provide a full service package to our vendors, buyers, landlords and tenants, and aim to provide unrivalled customer service. Indeed, our commitment to customer service has been highlighted having been awarded “Best Agency” by The British Awards, year after year in both Sales and Lettings. Our team's extensive knowledge of the areas in which they operate allow us to match perfectly buyers to sellers and tenants to landlords.



















Floorplans (